
錢屋本舗南館6F
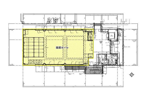
うえほんまち錢屋ホール

可動式舞台完備!
いろいろなサイズ展開が可能◎
落語、講演会、セミナー、研修、会議からイベントなど、お客様のニーズに合った用途でご利用いただける多目的ホール。
最大で3間×3間の能舞台サイズにも対応可能な可動式の舞台を設置。落語会で使用する高座台や屏風などの備品も充実。
INFORMATION

- 所在地
- 大阪府大阪市天王寺区石ヶ辻町14番2号
錢屋本舗南館6F - アクセス
- 近鉄大阪線・奈良線、大阪上本町駅より徒歩5分
大阪メトロ谷町線・千日前線、谷町九丁目駅より徒歩10分 - 広さ
- 183.12m2(実質有効面積160m2)
- 席数
- 最大225席
- ステージ
- 550cm×550cm(280cm×550cmとしても使用可)
- 設備
- 音響設備、プロジェクター&スクリーン(200インチ)、松羽目幕
- 備品
- 落語用 / 平台・緋毛氈・座布団・めくり台・屏風(一双)・サンパチマイク
PHOTO GALLERY












